Свайно-ростверковый фундамент - один из самых надежных видов фундамента
Свайно-ростверковый фундамент - один из самых надежных видов фундамента. Такое основание подойдет для возведения сооружений из любых видов строительных материалов.
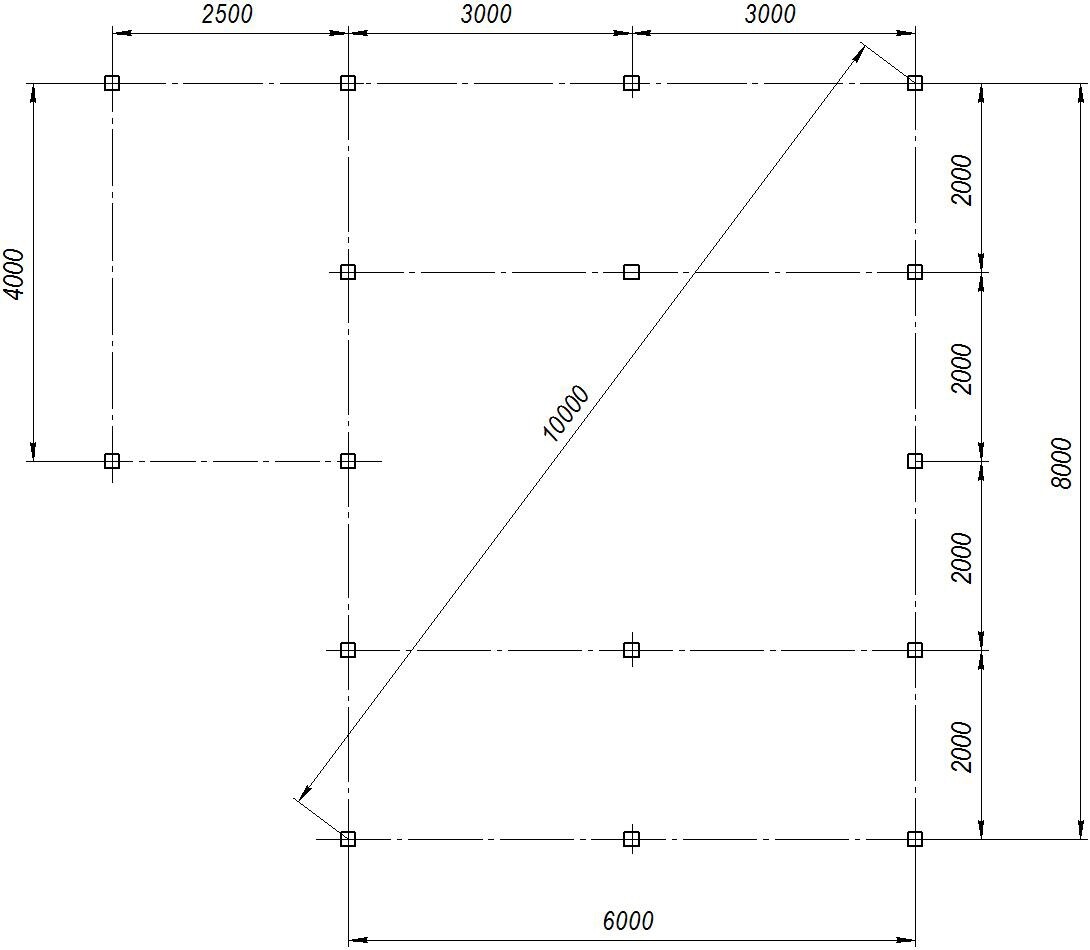
За счет свай, смонтированных на 3м в землю, бетонный ростверк остается неподвижным круглый год, независимо от погодных условий. А песчаное основание служит для отведения грунтовых вод из под фундамента.
Завершены работы по возведению свайно-ростверкого фундамента в д. Марфино. Убран плодородный слой почвы, далее сделали песчаное основания и смонтировали ж/б забивные сваи 150х150х3000 мм. Верхняя часть свай "распушена". После изготовления опалубки, верхняя часть свай (арматуры) связывается с основным армированием ростверка.
Правда из за погодный условий и плохого заезде на участке, при заливке бетона пришлось прибегнуть к использованию спецтехники в виде бетононасоса.
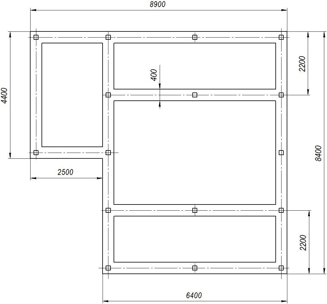
Чуть чуть потрудились и фундамент готов. Марка бетона М300 на природном щебне, основное армирование 12, хомуты 8мм.
Заказывайте устройство свайно-ростверкового фундамента у профессионалов по телефону 8(911) 500 46 66.
За счет свай, смонтированных на 3м в землю, бетонный ростверк остается неподвижным круглый год, независимо от погодных условий. А песчаное основание служит для отведения грунтовых вод из под фундамента.
Завершены работы по возведению свайно-ростверкого фундамента в д. Марфино. Убран плодородный слой почвы, далее сделали песчаное основания и смонтировали ж/б забивные сваи 150х150х3000 мм. Верхняя часть свай "распушена". После изготовления опалубки, верхняя часть свай (арматуры) связывается с основным армированием ростверка.
Правда из за погодный условий и плохого заезде на участке, при заливке бетона пришлось прибегнуть к использованию спецтехники в виде бетононасоса.
Чуть чуть потрудились и фундамент готов. Марка бетона М300 на природном щебне, основное армирование 12, хомуты 8мм.
Заказывайте устройство свайно-ростверкового фундамента у профессионалов по телефону 8(911) 500 46 66.