Проект дома АС-001 "СТИМУЛ" (7,5х7,5 м) 111 м2 (98 м2)
Материал: газобетон / арболит Кол-во этажей: 2
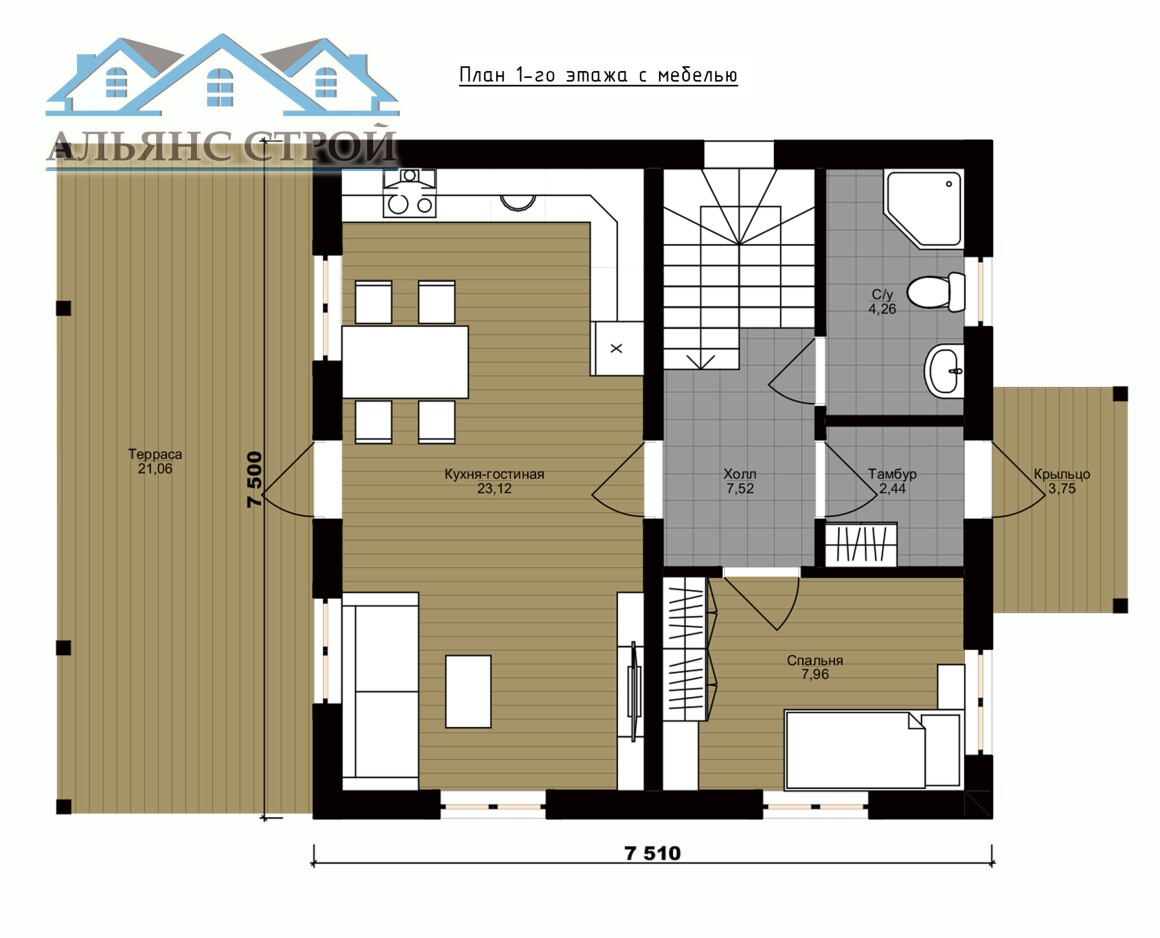
Первый этаж кв. м
Крыльцо .............................. 3,8(2)
Тамбур ................................... 2,4
Холл ......................................... 7,5
Сан. узел ............................. 4,3
Кухня-гостиная ............. 23,1
Комната ............................... 8,0
Терраса ................................ 21,0(10)
Площадь 1 этажа 70 (57) м2
Второй этаж кв. м
Холл ........................................... 3,9
Комната ................................. 9,7
Комната ................................. 11,4
Комната ................................. 11,4
Сан. узел ................................ 5,3
Площадь 2 этажа 41 м2
Общая площадь 111 м2
Жилая площадь 86 м2
* РАСЧЕТНАЯ ПЛОЩАДЬ 98 м2
(* уточнить)
3 575 000 ₽
цена в ипотеку с ЭСКРОУ-счетом:
6 795 000 ₽
Крыльцо .............................. 3,8(2)
Тамбур ................................... 2,4
Холл ......................................... 7,5
Сан. узел ............................. 4,3
Кухня-гостиная ............. 23,1
Комната ............................... 8,0
Терраса ................................ 21,0(10)
Площадь 1 этажа 70 (57) м2
Второй этаж кв. м
Холл ........................................... 3,9
Комната ................................. 9,7
Комната ................................. 11,4
Комната ................................. 11,4
Сан. узел ................................ 5,3
Площадь 2 этажа 41 м2
Общая площадь 111 м2
Жилая площадь 86 м2
* РАСЧЕТНАЯ ПЛОЩАДЬ 98 м2
(* уточнить)
3 575 000 ₽
цена в ипотеку с ЭСКРОУ-счетом:
6 795 000 ₽
| КОМПЛЕКТАЦИЯ | ХОЛОДНЫЙ КОНТУР | ТЕПЛЫЙ КОНТУР |
| 3 575 000 ₽ | 5 660 000 ₽ (в ипотеку с ЭСКРОУ-счетом: 6 795 000 ₽) |
|
| ФУНДАМЕНТ | монолитный ростверковый (ленточный), ростверк 300х800 мм |
монолитный ростверковый (ленточный), ростверк 300х800 мм |
| СТЕНОВОЙ КОМПЛЕКТ | газобетонные блоки 300 мм | газобетонные блоки 300 мм |
| ПЕРЕКРЫТИЯ | лаги 100х200 мм | лаги 100х200 мм |
| КРЫША | металлочерепица | металлочерепица |
| ОКНА | - | REHAU двухкамерные |
| ДВЕРИ | - | входная - металлическая с терморазрывом |
| ПОЛ 1 ЭТАЖ | - | обратная засыпка грунта (песок), теплоизоляция ЭППС (пеноплекс) 100 мм, монолитная армированная бетонная стяжка 100 мм |
| ПОТОЛОК 1 ЭТАЖ | - | обрешетка 20х100 мм (основа под чистовой потолок) |
| ПОЛ 2 ЭТАЖ | - | шумоизоляция 200 мм, ДСП QuickDeck (основа под чистовое напольное покрытие) |
| ПОТОЛОК 2 ЭТАЖ | - | теплоизоляция 200 мм, обрешетка 20х100 мм (основа под чистовой потолок) |
| ПЕРЕГОРОДКИ | - | 1 этаж: блоки газобетон 75 мм, 2 этаж: каркас, шумоизоляция 50 мм, ГКЛ |
Подведение инженерных систем дополнительно к стоимости дома.
Стоимость монтажа систем ориентировочная. Точная сумма определяется исходя из количества и вида используемого оборудования.
ЭЛЕКТРИКА
ОТОПЛЕНИЕ
ВОДОСНАБЖЕНИЕ
КАНАЛИЗАЦИЯ
ВЕНТИЛЯЦИЯ
ОТДЕЛКА ФАСАДА
Конечная стоимость работ по отделке фасада будет зависеть от выбранного материала, необходимости теплоизоляции стен и объема работ.
Ваш газобетонный дом – это чистый холст, готовый принять любые дизайнерские решения!
Серые, однотонные стены легко превратятся в элегантный фасад с изысканной штукатуркой, или станут фоном для роскошного декоративного камня, а может облачатся в стильный сайдинг. Выбор за вами!
Ваш газобетонный дом – это чистый холст, готовый принять любые дизайнерские решения!
Серые, однотонные стены легко превратятся в элегантный фасад с изысканной штукатуркой, или станут фоном для роскошного декоративного камня, а может облачатся в стильный сайдинг. Выбор за вами!
ПОХОЖИЕ ПРОЕКТЫ
СПЕЦИАЛЬНЫЕ ПРЕДЛОЖЕНИЯ
Закажите проект
* Отправляя форму, Вы даете свое согласие на обработку персональных данных.
Спасибо! Мы свяжемся с вами в ближайшее время